上海半島酒店公寓 上海半島酒店什么檔次
黃浦濱江板塊,一直以來都是上海頗具收藏價值的居住區。其中外灘金融圈發展多年,不管是配套、規劃還是土地供應,大都已經走到了一個頂點。
當然這并不是一件壞事,就買房這方面,除了地段金貴、項目品質拔尖外,區域的未來規劃、可發展空間同樣是相當重要的考量因素之一,因為這代表了未來板塊的價值。
縱觀整個外灘金融圈,還能進行大規劃城市更新的區域,南外灘必須有姓名!
綠城外灘蘭庭已經入市了,大家知道在董家渡,融創外灘壹號院還有兩塊城市更新的地塊。
即下圖的12、14號地塊。
項目名稱:董家渡310-01街坊地塊項目項目地址:王家碼頭路以南、中華路以東、董家渡路以北、外倉橋街以西。用地面積:36811.30平方米。總建筑面積:213417.09平方米。容積率:3.72。建筑高度:140.20米
根據財聯社最新消息,融創近期將其位于南外灘董家渡的外灘壹號院的12和14地塊出讓,轉讓給了中信信托和蕪湖華融資本創譽投資中心,此輪股權轉讓后,中信信托在該項目中持股比例為64.678%,華融資本持股比例為25%,而融創僅有10.322%的股權!
根據合作協議,中國華融、浦發銀行牽頭的銀團以及中信信托等合作方攜手對該項目注資,新增融資總量將超120億元,注入資金用于該項目的整體開發、建設、運營。
這個市中心核心項目有望重新被激活。
融創外灘壹號院位于上海市黃浦區核心位置,地處南外灘板塊,位于內環內浦江“S”灣核心地段——外灘金融聚集帶,緊鄰董家渡金融城,BFC、十六鋪游艇碼頭、豫園等環伺周邊。
交通方面,軌交9號線小南門站僅50m,往北約2公里到延安路高架,往南約1公里到內環,復興東路隧道、人民路隧道、-延安路隧道、南浦大橋通達浦東-軌道交通。
以下為項目的設計稿件,僅供參考:
陸家嘴景觀視野:
西南角城市界面:
東北角城市界面:
14號地塊西側城市界面:
12號地塊西南角城市界面:
設置有會所:
風雨連廊:
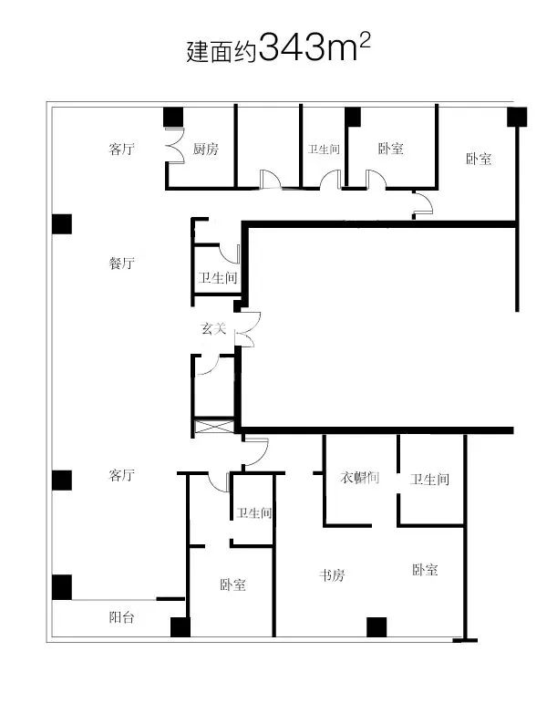
以下為項目的戶型圖(僅供參考,以開發商正式公示為準),預計推出約180-375㎡3-5房,高層戶型圖如下:
(僅供參考,最終以官方發布為準)
項目上期戶型圖如下:
附項目前期樣板間圖片欣賞:
具體來看下這個板塊的優勢,首先黃浦是海派文化的發源地、民族工業的發祥地。
根據規劃,南外灘所在的外灘金融集聚帶將對望陸家嘴金融城,將成為全球第三大金融中心的核心區,更是2035年卓越全球城市的中央活動區(CAZ)的“世界級濱水區”核心區域。
新拍攝圖
“壹號院”是融創的高端系產品,也一直被稱為上海名宅的教科書。我們來看融創外灘壹號院之前的產品信息。
回顧董家渡外灘壹號院項目一街之隔的「融創外灘壹號院」,由6棟正統大宅點狀排布,呈現出一個端正的 “王”字布局,以百余米中央景觀大道為軸,并形成圍合式花園,使景觀氛圍充滿著皇家儀式感。
「融創外灘壹號院」效果圖
王字布局保障了6棟樓的間距,最大可達約100m,且樓棟全部南北向排布,保證每一棟的觀景采光效果。
總平面圖
項目整體從設計布局到產品的打造,全程融入了東方人居最高理念“都市中心的世外桃源”的設計理念。
「融創外灘壹號院」效果圖
在社區的打造上,融創規劃了約2000平米的會所,約3500平米的園林景觀,種植了包括日本黑松、對節白蠟、造型羅漢松等多種名貴樹木,營造出豐繁的濃蔭層次和變化多樣的四季景觀。
「融創外灘壹號院」效果圖
「融創外灘壹號院」配備了有著“外灘綠寶石”之稱的中央大草坪。
「融創外灘壹號院」實景圖
配合由波蘭藝術家Malgorzata Chodakowska專門為「融創外灘壹號院」定制的國內首座“執扇的東方女孩”和國內第二座“西方芭蕾舞者”雕塑。一起造就了融創外灘壹號院的貴族園林。
「融創外灘壹號院」實景圖
園林的主要動線上,融創采用“線性排水溝”的方式,用與路面相同的卡拉麥里金石材,制成排水槽蓋板,并在邊緣處用不銹金屬做成排水網,避免了水漬透縫而出,侵染地面。
「融創外灘壹號院」實拍圖
聘請奢華酒店設計巨擘,威爾遜設計獨家定制約2000㎡的高品質靜謐會所,以世界前沿設計理念與品味為考量,堅守世界級大師造詣下的奢華質感與執著品質,打造奢華會所。
會所實拍
目前等待入市中,我們一起期待它的到來吧!
古北一號、云錦東方、綠城黃浦灣、恒大濱江華府、翠湖天地雋薈、翠湖天地五期、華僑城蘇河灣、萬科翡翠濱江、融創外灘一號院、華潤外灘九里、湯臣一品、綠地海珀外灘、華山夏都苑、陸家嘴一號院、露香園、中糧天悅一號、中糧海景一號、華府天地、嘉天匯、嘉御庭、中鷹黑森林、濱江凱旋門、浦東星河灣、靜安花園、九龍倉濱江一十八、凱德茂名公館、白金灣、尚海灣豪庭、保利西岸、海泰北外灘、上海天璽、華山公寓、御華山、思南公館、宛平88、九廬、海珀旭輝、洛克外灘源、半島酒店等公寓豪宅!
老洋房應公館、綠城玫瑰園、嚴家花園、檀宮、華洲君庭、華僑城蘇河灣別墅、露香園別墅、九間堂、御翠園、四季雅苑、金臣別墅、大豪山林別墅、萬源城御溪、碧云尊邸、東郊壹號、東郊花園、合生東郊別墅、明苑別墅、臻園別墅、桃花源、上海紫園、世茂佘山莊園、佘山高爾夫別墅、佘山東紫園、月湖山莊、西郊青溪花園、西郊莊園、蘭喬圣菲、遠洋麗茲堡、一品漫城別墅、大華珞斐墅、中建大公館、上海院子等別墅豪宅獲取更多產品信息。
我們已經開設了眾多豪宅交流群,10000+豪宅粉集中交流買房、賣房經驗,對上海豪宅感興趣的朋友可以私信報口令“融創外灘壹號院”歡迎入群參與交流體驗?
